
.
It’s taken several years, a lot of work and a few new grey hairs from the launch of our fundraising project to get to where we are today, with work about to begin on installing a loo, creating a Sunday School space, a new vestry and kitchen facilities in church.
.

.
Along the way we’ve been grateful for your generous support for all the fundraising initiatives. We’ve enjoyed talks by Tom Coward and Tim Baker, concerts by Margaret Watson, Slinfold Concert Band and Michael Heighway, Medieval Banquets, Casino evenings, Garden Parties and many other events. It’s been a real community effort and we don’t take your support for granted.
.
The faculty permission has been granted by the Diocese and work is due to begin in Spring 2026. We are very happy to be able to share the plans with you. If you have further questions please do speak to Rev’d Heather or any member of the PCC. We’ll try and share progress with you here and on our facebook page.
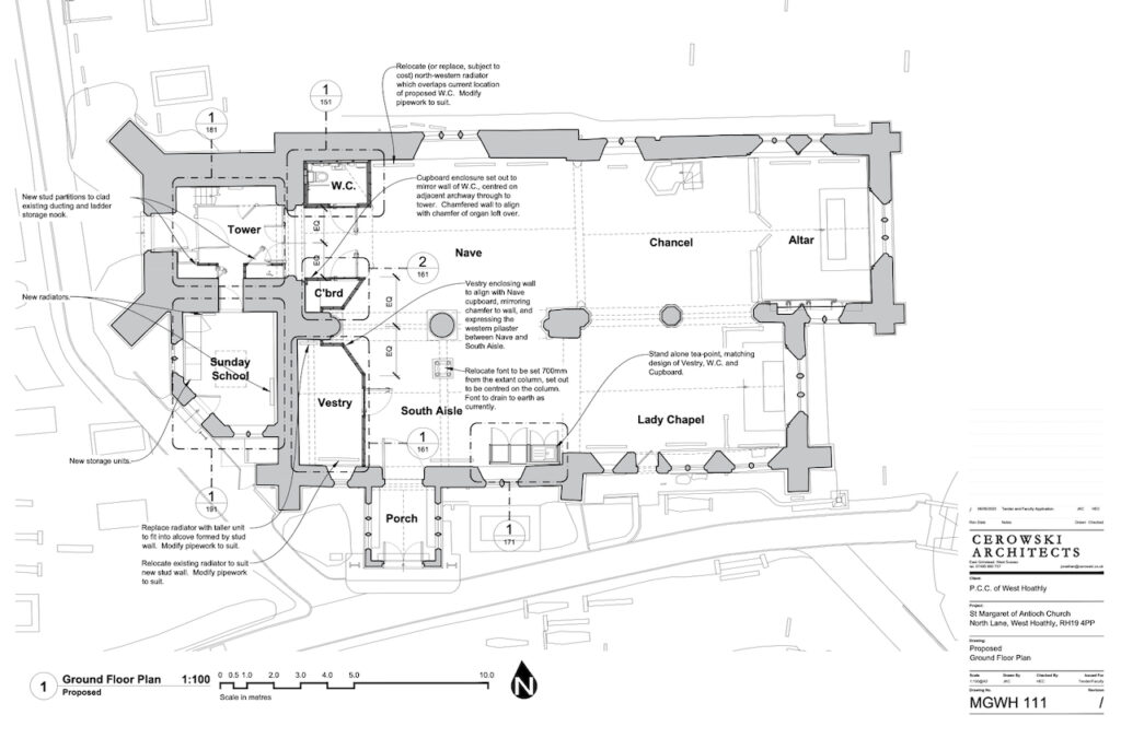
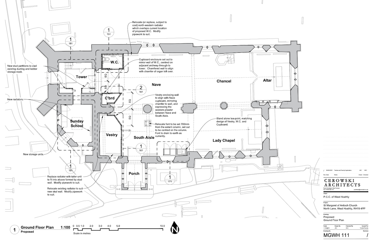
A quick run through of plans, area by area. These have been drawn up by our Church Architect, Jonathan Cerowski RIBA SCA AABC EASA. Jonathan is a specialist heritage architect who trained under Ptolemy Dean. Please click on any plan to enlarge it.
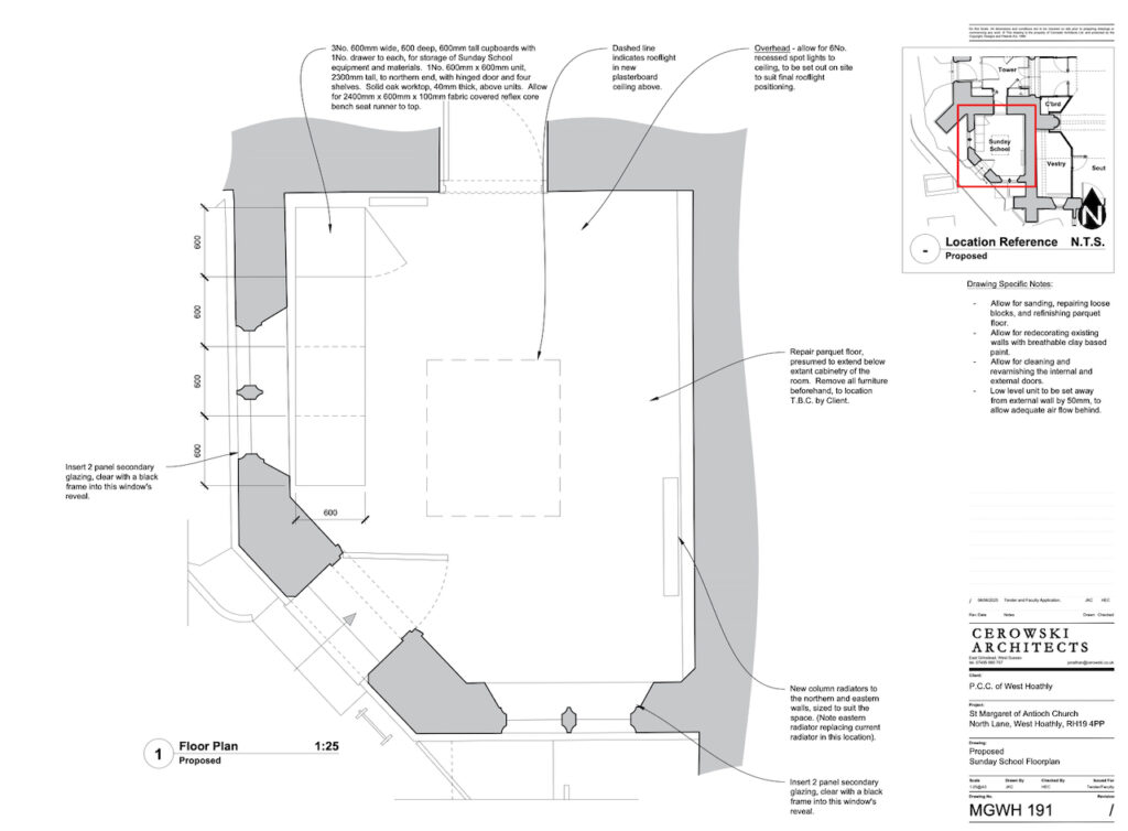
Firstly, the Sunday School area. The old vestry, built in 1899, will look unaltered from the outside but inside will be reordered, with a skylight to give good natural light inserted into the existing flat roof. Secondary glazing will improve insulation and new storage will be built. The exterior profile will remain unaltered.
The WC. This will be in a contained unit at the North West end of the main aisle. Fully accessible, it will align with the organ loft above. A storage cupboard will be built opposite, in the South West corner of the main aisle.
New Vestry. The font will be moved back close to its pre-1935 position beside the pillar and the vestry will be moved to the immediate left of the south door, (incidentally this is where we believe it was sited before 1870). The applied column on the west wall, between the new vestry and the North aisle cupboard, will remain exposed.

The new kitchen area will be beneath the Baptism of Christ / Emmaus window, to the right of the main South door.

Thank you for reading about our plans to make the best use possible of our church. If you would like to support us financially please visit our giving page where you will find more details. Thank you.








